Faktablad

  • Lilljansberget
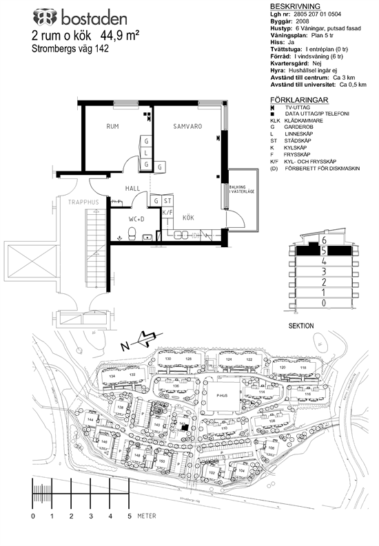
  • Strombergs Väg 142
  • Exteriör

Beskrivning

Objektnr.: 2805207010504
Rum: 2 Rum och kök
Boyta: 45 m²
Våning: 5
Hyra: 6 591 kr
Hiss: Ja
Balkong/Uteplats: Ja
Tillträde: 2026-04-01
Tillgänglig from: 2026-03-15

Anmäl intresse på objektet

Du kan anmäla ditt intresse för lägenheten på Bostaden i Umeås hemsida, där du även hittar våra andra lediga lägenheter.