Faktablad

  • Lilljansberget
  • Strombergs Väg 144
  • Exteriör

Beskrivning

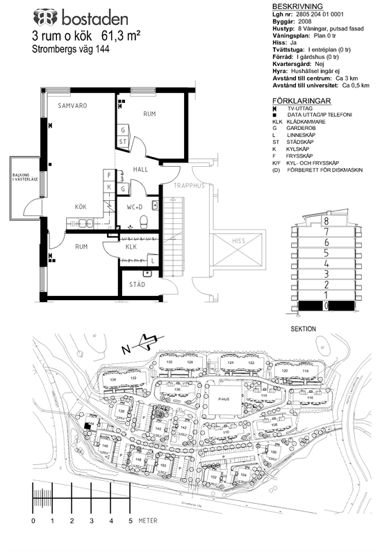
Objektnr.: 2805204010001
Rum: 3 Rum och kök
Boyta: 61 m²
Våning: 0
Hyra: 7 827 kr
Hiss: Ja
Balkong/Uteplats: Ja
Tillträde: 2026-02-01
Tillgänglig from: 2026-02-01

Anmäl intresse på objektet

Du kan anmäla ditt intresse för lägenheten på Bostaden i Umeås hemsida, där du även hittar våra andra lediga lägenheter.