Faktablad

  • Ålidhem
  • Magistervägen 8
  • Exteriör

Beskrivning

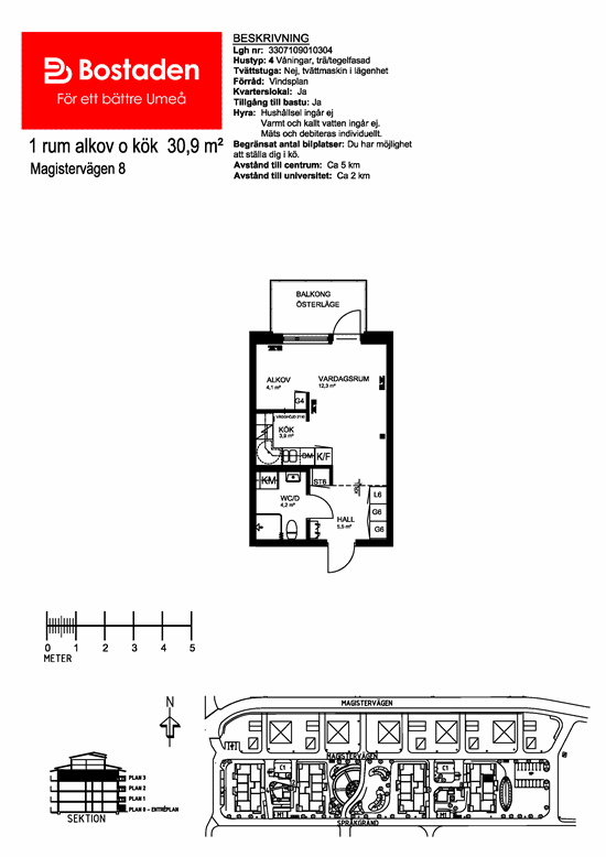
Objektnr.: 3307109010304
Rum: 1 Rum alkov och kök
Boyta: 31 m²
Våning: 3
Hyra: 5 977 kr
Hiss: Ja
Balkong/Uteplats: Ja
Tillträde: 2026-06-01
Tillgänglig from: 2026-06-01

Anmäl intresse på objektet

Du kan anmäla ditt intresse för lägenheten på Bostaden i Umeås hemsida, där du även hittar våra andra lediga lägenheter.