Faktablad

  • Lilljansberget
  • Strombergs Väg 134
  • Exteriör

Beskrivning

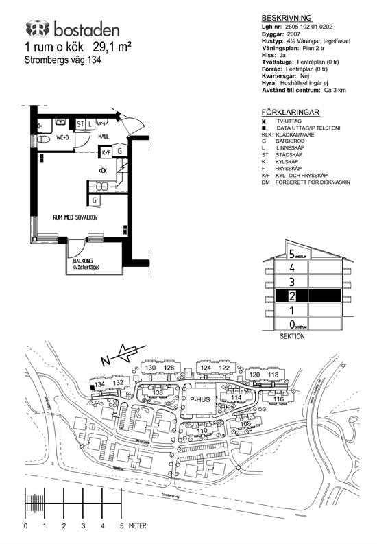
Objektnr.: 2805102010202
Rum: 1 Rum och kokvrå
Boyta: 29 m²
Våning: 2
Hyra: 5 019 kr
Hiss: Ja
Balkong/Uteplats: Ja
Tillträde: 2026-04-01
Tillgänglig from: 2026-04-01

Anmäl intresse på objektet

Du kan anmäla ditt intresse för lägenheten på Bostaden i Umeås hemsida, där du även hittar våra andra lediga lägenheter.