Faktablad

  • Väst på stan
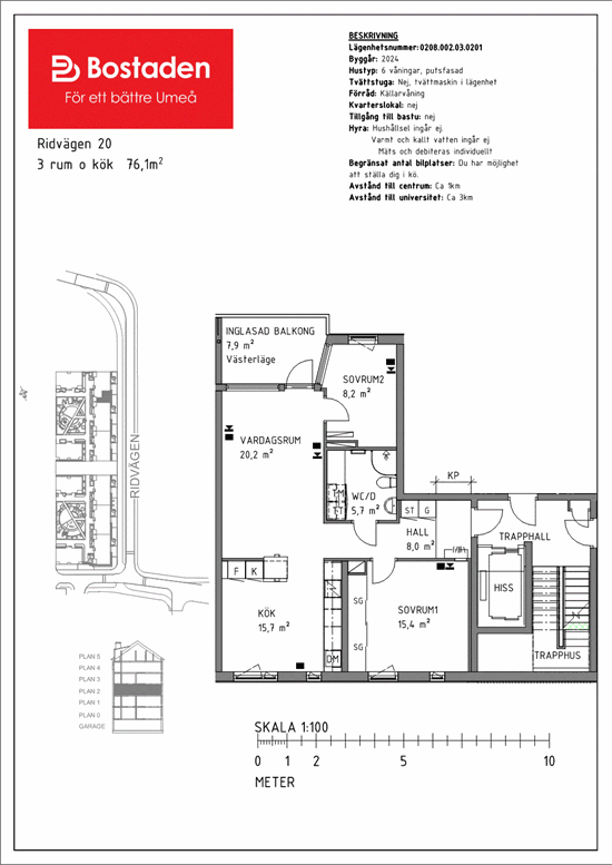
  • Ridvägen 20
  • Exteriör

Beskrivning

Objektnr.: 0208002030201
Rum: 3 Rum och kök
Boyta: 76 m²
Våning: 2
Hyra: 13 062 kr
Hiss: Ja
Balkong/Uteplats: Ja
Tillträde: 2026-06-01
Tillgänglig from: 2026-06-01

Anmäl intresse på objektet

Du kan anmäla ditt intresse för lägenheten på Bostaden i Umeås hemsida, där du även hittar våra andra lediga lägenheter.