Faktablad

  • Böleäng
  • Tranbärsvägen 10 C
  • Exteriör

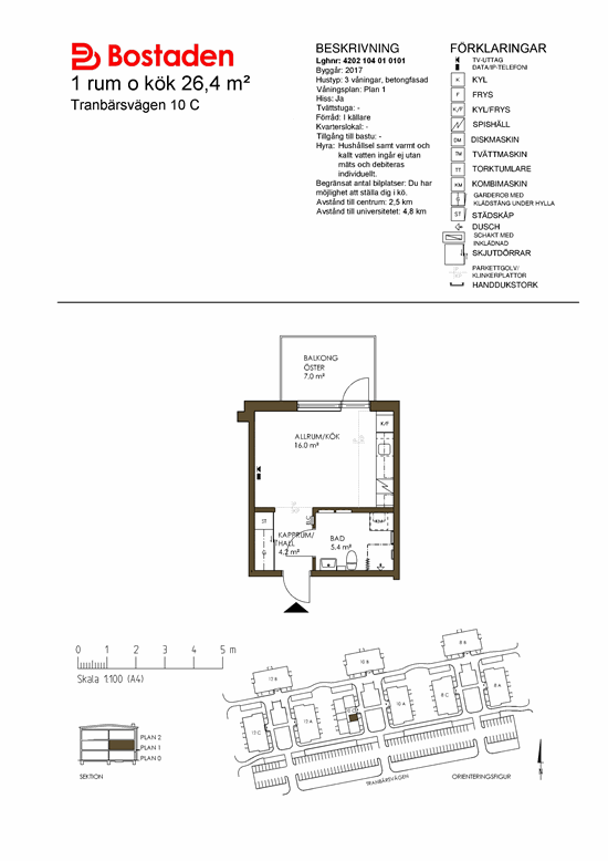
Beskrivning

Objektnr.: 4202104010101
Rum: 1 Rum och kök
Boyta: 26 m²
Våning: 1
Hyra: 5 227 kr
Hiss: Ja
Balkong/Uteplats: Ja
Tillträde: 2026-06-01
Tillgänglig from: 2026-06-01
Information:
  • Ungdomslägenhet 18-25 år

Anmäl intresse på objektet

Du kan anmäla ditt intresse för lägenheten på Bostaden i Umeås hemsida, där du även hittar våra andra lediga lägenheter.