Faktablad

  • Ålidhem
  • Magistervägen 12
  • Exteriör

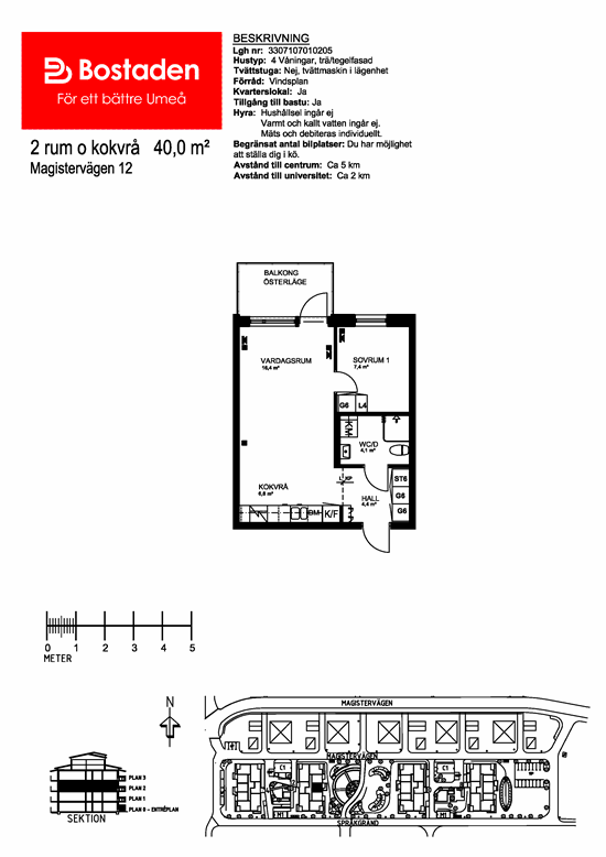
Beskrivning

Objektnr.: 3307107010205
Rum: 2 Rum och kokvrå
Boyta: 40 m²
Våning: 2
Hyra: 6 337 kr
Hiss: Ja
Balkong/Uteplats: Ja
Tillträde: 2026-06-01
Tillgänglig from: 2026-06-01

Anmäl intresse på objektet

Du kan anmäla ditt intresse för lägenheten på Bostaden i Umeås hemsida, där du även hittar våra andra lediga lägenheter.