Faktablad

  • Nydalahöjd
  • Rullstensgatan 178
  • Exteriör

Beskrivning

Objektnr.: 2802401010308
Rum: Enkelrum, Stud 10Mån
Boyta: 21 m²
Våning: 3
Hyra: 3 917 kr
Hiss: Ja
Balkong/Uteplats: Nej
Tillträde: 2026-05-01
Tillgänglig from: 2026-03-15
Information:
  • 10 månaders hyra, juni - juli är hyresfria månader.
  • Studentbostad
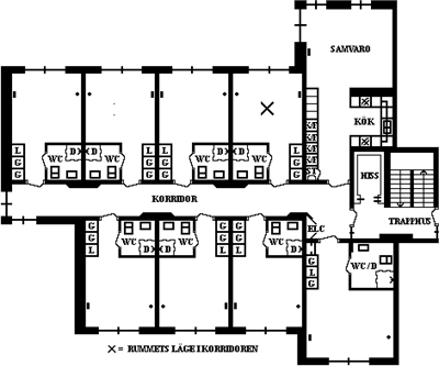
Planlösning

Anmäl intresse på objektet

Du kan anmäla ditt intresse för lägenheten på Bostaden i Umeås hemsida, där du även hittar våra andra lediga lägenheter.