Faktablad

  • Lilljansberget
  • Strombergs Väg 144
  • Exteriör

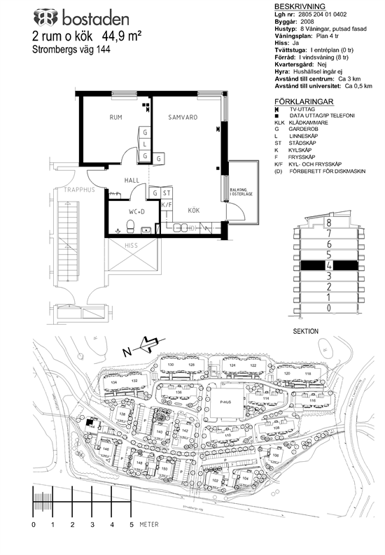
Beskrivning

Objektnr.: 2805204010402
Rum: 2 Rum och kök
Boyta: 45 m²
Våning: 4
Hyra: 6 680 kr
Hiss: Ja
Balkong/Uteplats: Ja
Tillträde: 2026-08-01
Tillgänglig from: 2026-08-01

Anmäl intresse på objektet

Du kan anmäla ditt intresse för lägenheten på Bostaden i Umeås hemsida, där du även hittar våra andra lediga lägenheter.