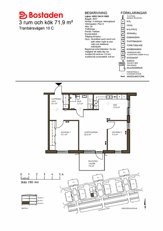
Faktablad

  • Böleäng
  • Tranbärsvägen 10 C
  • Exteriör

Beskrivning

Objektnr.: 4202104010003
Rum: 3 Rum och kök
Boyta: 72 m²
Våning: 0
Hyra: 10 206 kr
Hiss: Ja
Balkong/Uteplats: Ja
Tillträde: 2026-04-01
Tillgänglig from: 2026-04-01

Anmäl intresse på objektet

Du kan anmäla ditt intresse för lägenheten på Bostaden i Umeås hemsida, där du även hittar våra andra lediga lägenheter.