Faktablad

  • Centrum
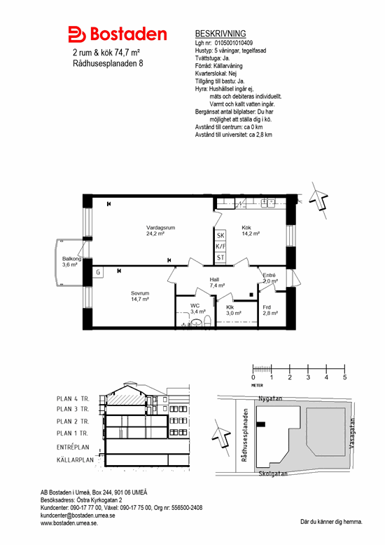
  • Rådhusesplanaden 8
  • Exteriör

Beskrivning

Objektnr.: 0105001010409
Rum: 2 Rum och kök
Boyta: 75 m²
Våning: 4
Hyra: 9 304 kr
Hiss: Ja
Balkong/Uteplats: Ja
Tillträde: 2026-06-01
Tillgänglig from: 2026-06-01

Anmäl intresse på objektet

Du kan anmäla ditt intresse för lägenheten på Bostaden i Umeås hemsida, där du även hittar våra andra lediga lägenheter.