Faktablad

  • Lilljansberget
  • Strombergs Väg 120
  • Exteriör

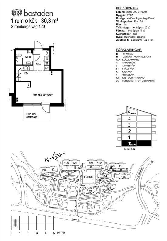
Beskrivning

Objektnr.: 2805002010001
Rum: 1 Rum och kokvrå
Boyta: 30 m²
Våning: 0
Hyra: 5 044 kr
Hiss: Ja
Balkong/Uteplats: Ja
Tillträde: 2026-06-01
Tillgänglig from: 2026-06-01

Anmäl intresse på objektet

Du kan anmäla ditt intresse för lägenheten på Bostaden i Umeås hemsida, där du även hittar våra andra lediga lägenheter.