Faktablad

  • Berghem
  • Axtorpsvägen 42
  • Exteriör

Beskrivning

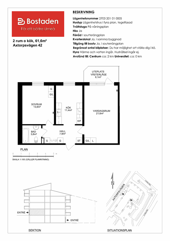
Objektnr.: 2703201010005
Rum: 2 Rum och kök, Stud
Boyta: 62 m²
Våning: 0
Hyra: 7 154 kr
Hiss: Ja
Balkong/Uteplats: Ja
Tillträde: 2026-01-01
Tillgänglig from: 2026-01-01
Information:
  • 12 månaders hyra.
  • Studentbostad
Planlösning

Anmäl intresse på objektet

Du kan anmäla ditt intresse för lägenheten på Bostaden i Umeås hemsida, där du även hittar våra andra lediga lägenheter.