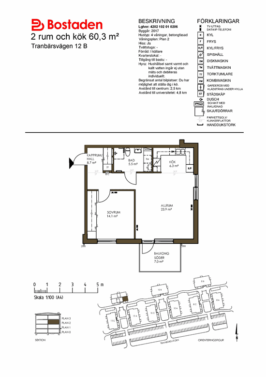
Faktablad

  • Böleäng
  • Tranbärsvägen 12 B
  • Exteriör

Beskrivning

Objektnr.: 4202102010206
Rum: 2 Rum och kök
Boyta: 60 m²
Våning: 2
Hyra: 8 582 kr
Hiss: Ja
Balkong/Uteplats: Ja
Tillträde: 2026-02-01
Tillgänglig from: 2026-01-01

Anmäl intresse på objektet

Du kan anmäla ditt intresse för lägenheten på Bostaden i Umeås hemsida, där du även hittar våra andra lediga lägenheter.