Faktablad

  • Ålidhem
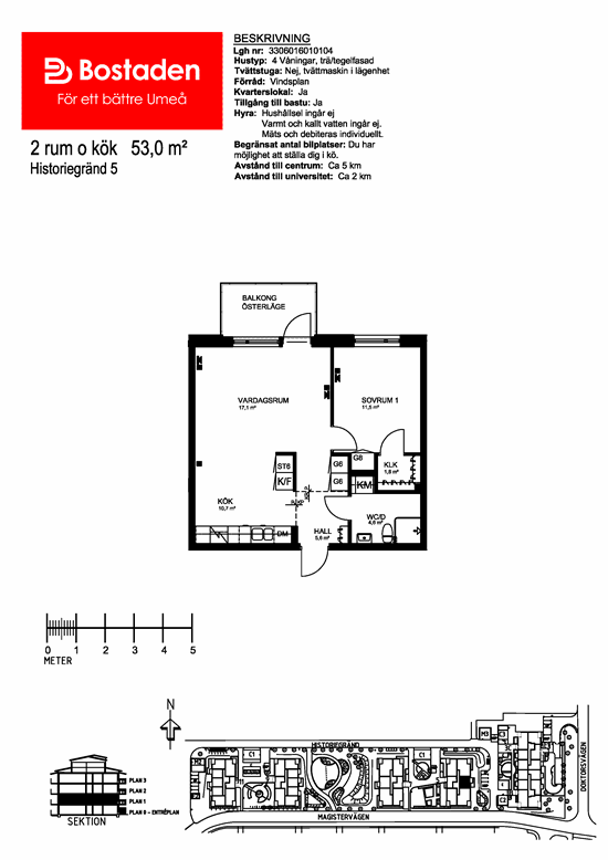
  • Historiegränd 5
  • Exteriör

Beskrivning

Objektnr.: 3306016010104
Rum: 2 Rum och kök
Boyta: 53 m²
Våning: 1
Hyra: 7 937 kr
Hiss: Ja
Balkong/Uteplats: Ja
Tillträde: 2025-12-01
Tillgänglig from: 2025-12-01

Anmäl intresse på objektet

Du kan anmäla ditt intresse för lägenheten på Bostaden i Umeås hemsida, där du även hittar våra andra lediga lägenheter.