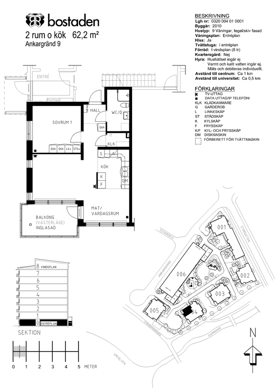
Faktablad

  • Öbacka
  • Ankargränd 9
  • Exteriör

Beskrivning

Objektnr.: 0320004010001
Rum: 2 Rum och kök
Boyta: 62 m²
Våning: 0
Hyra: 9 472 kr
Hiss: Ja
Balkong/Uteplats: Ja
Tillträde: 2026-06-01
Tillgänglig from: 2026-04-01

Anmäl intresse på objektet

Du kan anmäla ditt intresse för lägenheten på Bostaden i Umeås hemsida, där du även hittar våra andra lediga lägenheter.